Casa Monte Cristo Too
Preview only — see all hotel photos
See all 69 photos
Отель на карте
Casa Monte Cristo Too
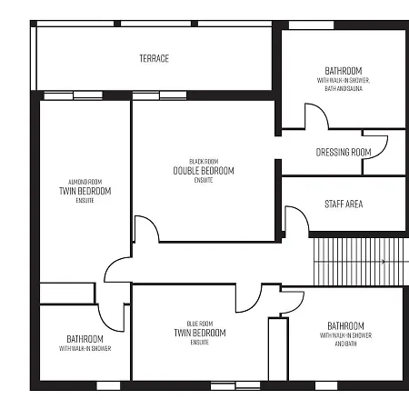
Casa Monte Cristo Too Lagos располагается в 4 км от Маяка Понта-да-Пьедаде и располагает бассейном, а также сауной для отдыха. Вилла с выходом на террасу располагается в 10 минутах езды на машине от Церкви Девы Марии.
Гости могут насладиться близким расстоянием к Пристани для яхт Лагуша, на расстоянии 2 км.
Фен и полотенца также входят в число удобств в ванной комнате.
Для удовлетворения потребностей гостей имеется оборудованная кухня с электрочайником, духовкой и кухонной утварью. Гости могут поужинать в ресторане Restaurante Cachoa, расположенном в 1 км. Автовокзал Quatro Estradas, расположенный всего в 10 минутах ходьбы, предлагает транспортные услуги в окрестностях.
Услуги
Основные удобства
- Wi-Fi
- Экспресс-регистрация
- Бассейн
- Занятия спортом
- Размещение с детьми
- Доступ для инвалидных колясок
- Кондиционер
- Домашние животные запрещены
Удобства
- Курение на территории запрещено
- Wi-Fi
- Парковка
- Сейф
- VIP регистрация заезда/ отъезда
- Экспресс регистрация заезда/ выезда
- Консьерж
- Домашние животные запрещены
- Номера/ услуги для инвалидов
- Доступ для инвалидных колясок
- Охрана
- Хранение багажа
- Детекторы дыма
- Туалет для людей с ограниченными возможностями
- Огнетушители
- Электрочайник
- Кухонные принадлежности
- Столовая на свежем воздухе
- Столики для пикника
- Бассейн с подогревом
- Открытый бассейн
- Пляжные зонтики
- Шезлонги
- Аквапарк
- Терраса для загара
- Сад
- Принадлежности для барбекю
- Сауна
- Виндсерфинг
- Дайвинг
- Подводное плавание
- Гребля на каноэ
- Пешие прогулки
- Катание на лошадях
- Поле для гольфа
- Мелкий бассейн
- Платный трансфер от/до аэропорта
- Кондиционер
- Отопление
- Мини-бар
- Зона для отдыха
- Патио
- Терраса
- Садовая мебель
- Набор для приготовления чая/кофе
- Обеденный стол
- Стиральная машина
- Телевизор с плоским экраном
- Детские кроватки
- Манеж
- Паркетный пол
Правила проживания
Карта
Местные достопримечательности
Достопримечательности
- Lagos Castle & City Walls (3,4 км)
- Пляж Луш (3685 км)
- Luz Beach Surf Spot (3755 км)
- Atalaia (2781 км)
- Baptista (3831 км)
- Луш (3891 км)
- Hausruine (2350 км)
- Church of Saint Anthony (3,2 км)
- Spar (3946 км)
Аэропорты
- Аэропорт Портимао (26 км)
Ж/д вокзалы
- Lagos Train Station (2,9 км)
Отзывы
100% проверенные отзывы